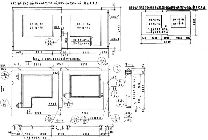
НР5-64.29.35-5б

Чертеж изделия:
Чертеж НР5-64.29.35-5б
Характеристики изделия:
ПараметрЗначение
Длина6400 мм
Ширина350 мм
Высота2900 мм
Масса5690 кг
Нормативный документСерия 1.132-1

НР5-64.29.35-5б   Наружная стеновая панель рядовая по Серии 1.132-1.